Top

トップページ

売買物件

賃貸物件

事業内容

会社情報

採用情報

お電話でのお問い合わせ

メールでのお問い合わせ

売買物件

賃貸物件

事業内容

会社情報

採用情報

売買物件

賃貸物件

事業内容

会社情報

採用情報

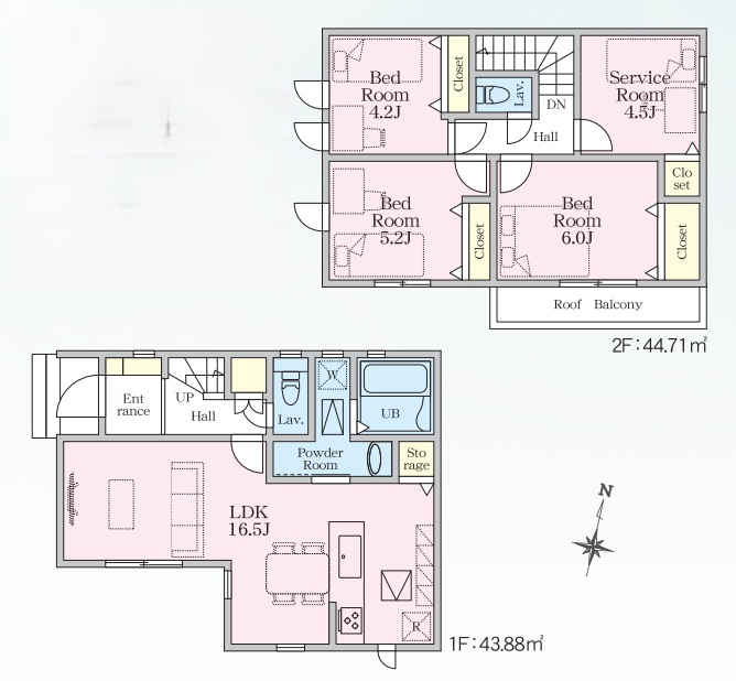
【おすすめ物件】八潮市中央3丁目 全2棟新築分譲

2026.03.29

 

八潮市で販売中のおすすめ駅チカ新築物件をご紹介させていただきます!

 

 

1号棟 完成イメージ
現地
1号棟 間取
2号棟 間取
2号棟 完成イメージ

 

特徴

人気の『長期優良住宅』です!

徒歩圏に教育施設や公園、お買物施設があり住環境良好♪

前面道路6mのためラクラク駐車できます!

都市ガス・本下水完備♪

 

 

 

 

 

ぜひお気軽にお問合せください!

 

お気軽にお問い合わせください

 

 

 

 

【おすすめ物件】草加市旭町2丁目 建築条件付き売地
【おすすめ物件】八潮市伊草1丁目 建築条件なし売地